Van den Ouden Makelaars

Weten wat jouw huis waard is?

Vrijstaande-woning Kempensweg 5 Nieuwerkerk

Specificaties:

Koopsom: € 869.000 k.k.

  • Perceeloppervlakte: 2475 m2
  • Inhoud: 430 m3
  • Bouwjaar: 1956
  • Kamers: 4
  • Slaapkamers: 3

Terug naar volledige overzicht

Omschrijving

LANDELIJK WONEN MET VEEL RUIMTE, PRIVACY EN VRIJHEID IN DE POLDER

KEMPENSWEG 5 IN NIEUWERKERK. DIT IS JOUW KANS OM TE WONEN OP EEN PERCEEL MET VEEL RUIMTE, PRACHTIG UITZICHT EN EEN GROTE SCHUUR. JE ERVAART HIER RUST EN NATUUR, MAAR OOK GEMAK EN BEREIKBAARHEID. JE ZIET EEN WOONBOERDERIJ, DIE JE DIRECT EEN VRIJ GEVOEL GEEFT.

LANDELIJK WONEN OP EEN GROOT PERCEEL
Je rijdt het erf op en voelt meteen rust en vrijheid. Het perceel van 2475m2 geeft je ruimte, groen en privacy. Je maakt hier een grote siertuin of een speelveld. Je geniet buiten met vrienden of familie op zonnige dagen. Je plant bomen, houdt dieren of start een moestuin. Dit grote kavel maakt je dromen mogelijk.

OMGEVEN DOOR NATUUR EN POLDERUITZICHT
Je woont tussen Nieuwerkerk en Oosterland en ziet eindeloze velden. Je ervaart stilte. Je wandelt langs rustige wegen en hoort vogels. Je voelt contact met natuur en seizoenen. Dit is landelijk wonen zonder drukte. Je kijkt elke dag naar het open landschap.

LOGISCHE EN RUIME INDELING
Je opent het hek en parkeert jouw auto op eigen terrein. Via de zij-entree bereik je de hal met een radiator en een trap-/kelderkast. Je loopt door naar de woonkamer met vele raampartijen met roedeverdeling die veel daglicht naar binnen laten. Je kijkt op de tuin en voelt direct sfeer door de houtkachel.

De open keuken ligt achter en heeft een rechte opstelling en een separaat spoeleiland. Je kookt met het Smeg fornuis met inductiekookplaat en dubbele oven. Je gebruikt de koelkast, vaatwasser en afzuigkap. Deze keuken maakt koken plezierig en praktisch. Je houdt contact met gezin of gasten tijdens koken. Vanuit de keuken loop je naar de bijkeuken met witgoedaansluitingen. Je bereikt vanaf hier de separate toiletruimte, de tuin en de grote schuur.

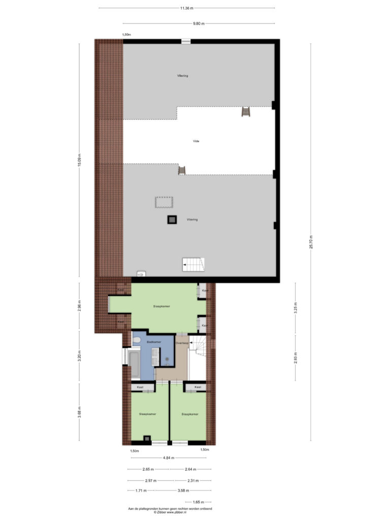
Op de eerste verdieping vind je drie slaapkamers met vaste kasten. De badkamer is ruim en heeft een bad, een inloopdouche, een dubbele wastafel en een tweede toilet. Je voelt hoe prettig en praktisch deze indeling werkt.

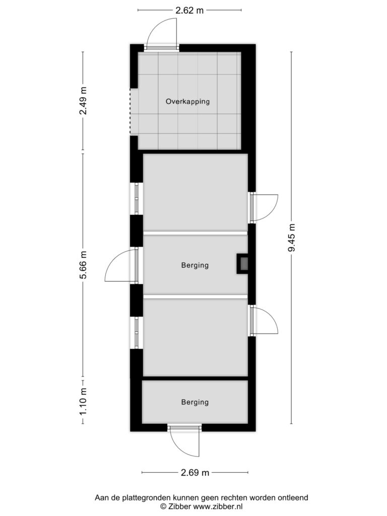
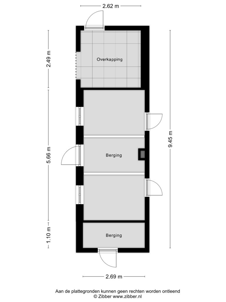
RUIME SCHUUR MET MOGELIJKHEDEN EN KRACHTSTROOM
Je gebruikt de schuur voor opslag, hobby of voertuigen. Je rijdt direct naar binnen via een van de toegangsdeuren. Je hebt krachtstroom, compartimenten en twee zolders. Je maakt hier een werkplaats, opslag of atelier. Je maakt jouw eigen invulling mogelijk. De ruimte geeft vrijheid en kansen.

FIJN DORPS WONEN MET RUST EN GEMAK
Je bereikt de kern Nieuwerkerk met winkels, scholen en verenigingen met gemak. Je geniet van dorpsleven en buitenleven tegelijk. De omgeving biedt ruimte, natuur en rust. Je woont hier prettig en ontspannen.

GOEDE BEREIKBAARHEID EN SNELLE ROUTES VIA N59
Je woont landelijk en toch goed verbonden met de regio. Je bereikt Zierikzee, Bruinisse en Middelharnis snel. Je rijdt via de N59 naar Rotterdam of de Randstad. Je pakt de auto en rijdt binnen korte tijd naar werk of familie. Je ervaart vrijheid zonder afgelegen te wonen.

DUURZAAM EN TOEKOMSTGERICHT WONEN
Je profiteert van twintig zonnepanelen. Je verlaagt energiekosten en denkt aan toekomst. Je woont comfortabel en duurzaam. Je voelt je voorbereid en bewust.

KENMERKEN EN VOORDELEN
• Ruim kavel van 2475m2
• Fraaie ligging tussen Nieuwerkerk en Oosterland
• Grote schuur met diverse gebruiksmogelijkheden
• 20 zonnepanelen
• Rondom videocamera’s
• Het dak van het woonhuis is grotendeels geïsoleerd
• In de polder met weids uitzicht
• Goede bereikbaarheid via N59
• Twee zolderverdiepingen in de schuur
• Tuin met zitjes en privacy
• Geschikt voor dieren, tuin of hobby
• Originele varkensschuur en paardenstal nog aanwezig.(voor de paardenliefhebbers)

IN COLLEGIALE VERKOOP MET ZEEUWS LANDGOED

De objecten worden opgemeten volgens de Meetinstructie, welke is gebaseerd op de NEN2580. De Meetinstructie is bedoeld om een meer eenduidige manier van meten toe te passen voor het geven van een indicatie van de gebruiksoppervlakte. De Meetinstructie sluit verschillen in meetuitkomsten niet volledig uit, door bijvoorbeeld interpretatieverschillen, afrondingen of beperkingen bij het uitvoeren van de meting.

Locatie

  • Dit veld is bedoeld voor validatiedoeleinden en moet niet worden gewijzigd.

Neem contact op

Altijd zonder verplichtingen

Heb je vragen of zou je graag een afspraak willen maken? Geef ons gerust een belletje of stuur een email. Je hoort van ons.

Gratis waardebepaling aanvragen

Heb je verhuisplannen of ben je benieuwd hoeveel je huis nu waard is? Maak gebruik van onze gratis waardebepaling!

Gratis waardebepaling aanvragen

Heb je verhuisplannen of ben je benieuwd hoeveel je huis nu waard is? Maak gebruik van onze gratis waardebepaling!

Je gebruikt een verouderde webbrowser

Deze website maakt gebruik van moderne technieken die niet worden ondersteund door jouw webbrowser. Update mijn webbrowser

×